Товаров:
На сумму: руб.
Каталог продукции
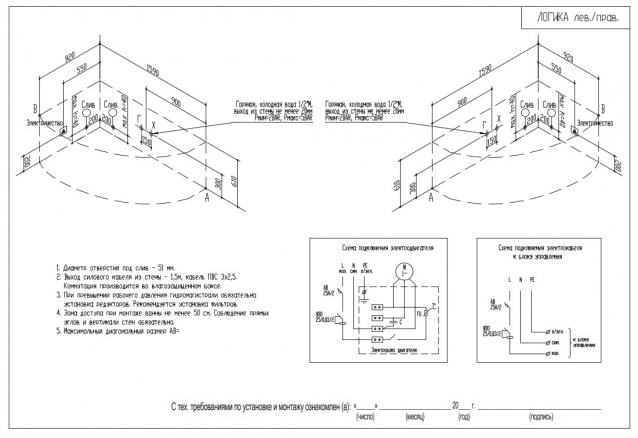
Акриловая ванна Акватика Логика STANDART
Описание
Гидромассажная ванна «Логика» необычной асимметричной формы создана для любителей традиционных мотивов и свежих веяний. Классическая овальная чаша отлично сочетается с треугольным бортиком, дополненным небольшим сиденьем. Такая конструкция подарит максимальное расслабление и комфорт тому, кто находится в данное время в приятной телу теплой воде. Установленные в области спины, бедер и стоп гидромассажные форсунки могут подавать воду под разным напором, сила которого регулируется пультом. Если Вы давно мечтали об акриловой ванне, но не решались ее приобрести, обратите внимание на эту модель – ее простые и изысканные линии будут сочетаться с любым интерьером!
Вариант комплектации:
- STANDART (рама, слив-перелив)
Важно! Вариант ванны правая или левая необходимо указывать при заказе. Разворот ванны Акватика определяет по голове, если подходить со стороны фронтального экрана.
Характеристики
| Категория | Ванны |
| Производитель: | Акватика |
| Страна: | Россия |
| Размер: | 160x105 см |
| Форма: | угловая-асимметричная |
| Объем: | 220 л |
| Гарантия: | 3 года |
| Цвет: | белый |
| Материал: | акрил |
Дополнительные комплектующие:
- фронтальная панель - 7795 рублей.
- аэромассаж - 29460 рублей.
- подголовник Техногель - 10080 рублей.
- подводный прожектор (белый) - 10680 рублей.
- подводный прожектор (мультицвет) - 15800 рублей.
- Аквасаунд - 30920 рублей.
Смесители:
- Ниагара - 27320 рублей.
- BauEdge (GROHE - Германия) - 39000 рублей.






