Товаров:
На сумму: руб.
Каталог продукции
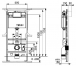
Инсталляция для унитазов-биде Tece TECEprofil 9300079
Описание
- Артикул: 9300079 (9 300 079)
Комплектация:
- смывной бачок объемом 10 л, выборочный слив большого (4,5/6/7,5/9 л) или малого (3 л) объема воды;
- комплект крепежных элементов для установки унитаза (установочное расстояние 180 или 230 мм);
- комплект патрубков с резиновыми манжетами для подсоединения унитаза;
- фановый отвод ∅ 90/100 мм;
- комплект защитных заглушек для патрубков;
- защитный патрубок шланга для подключения воды;
- монтажная коробка для электрических соединений;
- шаблон для отделки отверстия под панель смыва;
- инструкция по установке застенного модуля.
Обеспечивает универсальное подключение унитазов-биде со скрытым подключением воды и электропитания, например, TOTO SG/EK/GL, Villeroy & Boch ViClean, Duravit SensoWash C, Geberit AquaClean 8000/Sela/Mera.
Возможна также установка унитазов-биде других производителей, но предварительно необходимо убедиться в соответствии подключений воды и электропитания.
Дополнительно приобретается:
- панель смыва;
- комплект крепежных элементов для установки модуля прокладка звукоизолирующая, арт. 9200010;
- набор ограничительных колец для регулировки скорости смыва, арт. 9820337 (опционально);
- съемная крышка бачка с контейнером для гигиенических таблеток, арт. 9240950 (опционально).
Предоплата 50%.



